Tiger Security has completed security works at Block 9 of Dawson Road Primary School following the building’s recent refurbishment. The project involved installing and integrating updated security systems within an active school environment, requiring careful coordination and strict adherence to safety and access requirements. The location of the refurbished block presented challenges, but these were […]
Colwill School in Massey has reached an exciting new milestone with the completion of its latest development—a stunning, two-level teaching block designed to elevate learning and connection across the school community. The new 12-classroom facility reflects a modern approach to education, blending innovative design with practical functionality. Bright, spacious, and flexible, the building provides a […]
A new gymnasium at Botany Downs College in East Auckland was recently completed. This project represented an exciting opportunity to enhance safety and accessibility for students, staff, and visitors. Our team implemented an extension to the school’s fully integrated security system that combined access control, surveillance, and monitoring solutions tailored to the school’s modern facilities.
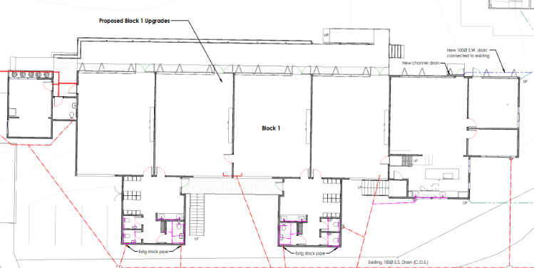
Tiger Security was awarded the contract for security in respect of a refurbishment project on Block 1, Birkdale North School. The project also saw re-roofing on part of the block. The project required isolation of the works area, re-running existing and new cable, while ensuring the school’s security system was functioning during the project.
Varifocal lenses are an important component in CCTV surveillance systems, offering flexibility and precision that make them popular in both commercial and residential security setups. Unlike fixed lenses, which have a single focal length, varifocal lenses can be adjusted to change the field of view and zoom level. For example, a lens might range from […]
Tiger Security is undertaking a website upgrade and redesign. Work is underway on our website redesign, which is planned to be completed by the end of October. The redesign includes background work on our online shop. Functionality will be maintained during this period and online orders can be place as normal. Thank you.
Tiger Security was awarded the security contract in a recent modification to the Arohanui Satellite Unit at Rutherford Primary School. The Arohanui Satellite Unit (ASU) at Rutherford Primary school in Te Atatu is a standalone building on the school’s property which caters for special needs children. The ASU underwent an extensive internal and external refit […]
Tiger Security was awarded the security contract in a recent interior remodelling to create a learning support space. Tiger Security recently completed this security project at Arahoe School in west Auckland. The remodelling included demolishing of internal walls and erection of new ones to reflect the new floor plan changes and create the new space. […]
Tiger Security was awarded the security contract in a recent renovation of Block 5 at Alfriston School. Tiger Security recently completed a small security project at Alfriston School in south Auckland as part of a building renovation initiative. The project involved isolating the works area and replacing the existing PIR motion sensors. We ensured that […]
We have been contacted by members of the public about unsolicited texts received from ‘Tiger Securities’. The texts are purportedly from a business named ‘Tiger Securities’ which says they have “temporarily restricted access due to a recent sign in” and that “immediate action is required to avoid service interruption.” A copy of the text is […]
Tiger Security was awarded the security contract in a recent renovation of the school buildings at Maungaturoto School. Tiger Security recently completed a small security project at Maungaturoto School in Northland as part of a building renovation initiative. The project involved isolating the works area and replacing the existing PIR motion sensors. We ensured that […]
Tiger Security has extensive experience in the security industry and can leverage this knowledge and expertise to offer high-value consultancy services tailored to a wide range of clients. For more information on our security consultancy services, click here.
Inner Range’s Inception now integrates with the Wisenet Wave app from Hanwha. Allowing bi-directional control of both systems in one, this integration is simple to use through the Wisenet Wave mobile app. Specific events trigger alarms, activating security inputs and custom emergency icons on the Wisenet Wave mobile app, which activates alarms on the Inception […]
Tiger Security successfully tendered for the security works in the refurbishment of Glen Eden Primary School’s Block 1 classrooms. The refurbishment involved a complete strip-out and replacement of the existing interior wall linings and fixtures. The school’s alarm system was isolated for a period to allow the construction work to commence. Surface run cable was […]
Tiger Security was engaged by Fruitvale School in West Auckland to install a new CCTV security camera system. A total of nine Uniview security cameras were positioned in key locations around the school property for maximum crime detection capability. All cameras were cabled for IP protocol purposes. Mobile phone app remote access and viewing was […]
Retail customers of Tiger Security’s online shop can now pay with Afterpay. Our shop sells a range of security and electronic products and customers now have the flexibility of paying with Afterpay. Afterpay is a ‘buy now pay later’ service offering members the ability to spread payments for online purchases over four weekly payments. If […]
West Auckland’s Arahoe Primary School recently added a new Learning Support Centre (LSC) space. The LSC project was in effect an extension and refurbishment of the school’s reception area to accomodate a new space, with walls and doorways being demolished and/or re-positioned. The new floor plan required reconfiguration of existing security wiring and re-positioning of […]
The Arrowhead Elite alarm is one of New Zealand’s best-selling alarm systems. This is due to the Elite’s ease of installation and programming, reliability and great pricing. It’s also New Zealand-made, which makes support and technicial issues easy to sort out. We are often contacted by people all over the coutnry asking us how to […]
Block 7 at Auckland’s Cockle Bay School underwent a refurbishment recently. Tiger Security was awarded the security contract for the project. This involved isolating the block while construction works were carried out, re-cabling for new security devices, and installing the same. An expander in the block was relocated and refitted to a brace wall. Existing […]
A new High Dependency Unit (HDU) bathroom was recently installed in Auckland’s Chelsea Primary School. Tiger Security was contracted to install an emergency panic button system for the project, which saw an existing block of toilets converted into an HDU facility with toilets and a shower. The emergency button system allows staff in the Administration […]



















